下旋转伸缩挂梁电磁桥式起重机
TAGS: 起重机

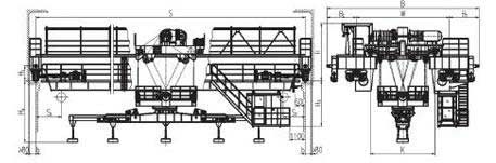
下旋转挂梁桥式起重机带有可旋转挂梁,又可伸缩的电磁挂梁,适用于钢厂、船厂、港口、堆场和仓储等室内或露天的固定跨间,装卸及搬运钢板、型钢、盘卷等物料。特别适用于吊运不同规格且需水平旋转的场合,能够根据所吊物料的规格和重量,电动调节电磁铁间距及无极调节电磁铁磁力。根据客户要求可提供:各机构的调速(1:10或更大),超载及报警,遥控PLC及故障检测,显示记录和打印系统。挂梁为十字架结构,可靠及安全性好,具有一定的防摇摆功能。挂梁下可以携带电磁吸盘、夹钳等专用吊具。


