TAGS: 起重机

SDQ-3型手动单梁悬挂起重机适用于搬运量不大,而不甚讲究效率和速度的无电源仓库,车间或检修设备等处使用。
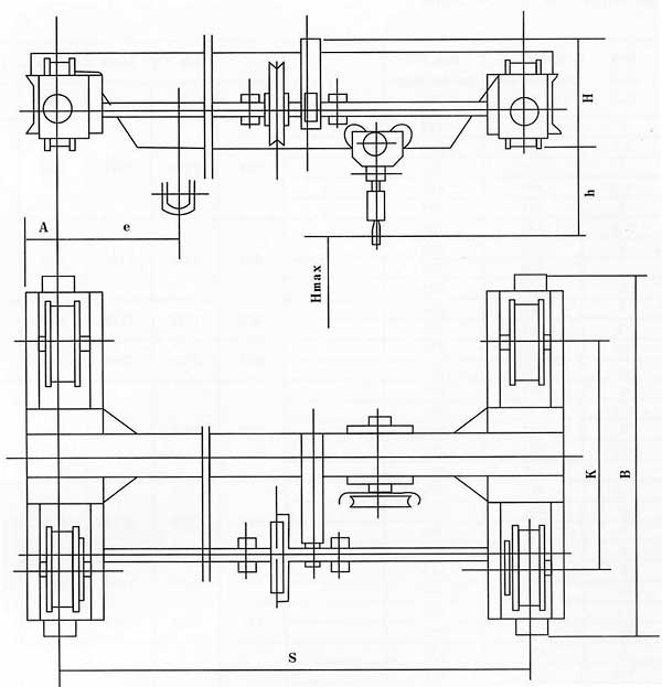
工作环境温度不得低于-20℃。 手动单梁起重机主要有桥梁,手动单轨小车,手拉葫芦三部分组成。
性能参数performance Parameter
起重机安装时必须符合下列条件:
1、轨道接头允许偏差,高低差不得大于mm,间隙小于2mm。
2、规矩LK小于10m.允许偏差3mm,规矩LK大于10m.允许偏差5mm。
3、轨道标高允许偏差5mm。
4、轨道坡度允许偏差为轨道长度的1/1000。
5、轨道弯曲,允许偏差为3mm。
手动单梁起重机的所有润滑装置。每半年注润滑油(干油)一次。

本样本所提供的数据及图表仅供参考,详细参数请致电本公司予以确认。

